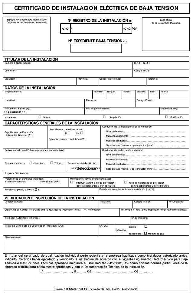
¿Qué es el boletín eléctrico ó certificado de instalación eléctrica?
El boletín eléctrico
es un documento obligatorio que debemos tener todos. Sirve para certificar que nuestra instalación eléctrica está en buenas condiciones y cumple con la normativa. En este documento el técnico autorizado refleja las características de la instalación eléctrica.
Lo podríamos asemejar a la ITV de un vehículo (es una autorización oficial para seguir funcionando.)
El Boletín de enganche eléctrico, también conocido como certificación CIE eléctrica de baja tensión, tiene que ser realizado por un Instalador Electricista Autorizado en Alcalá de Guadaíra. Para poder obtener el certificado de instalación eléctrica, deberá encontrarse la instalación eléctrica en buen estado y cumplir con todos los requisitos necesarios según el reglamento de R.E.B.T. (Reglamento Electro Técnico para Baja Tensión).
¿Cómo puedo conseguir un certificado de instalación eléctrica en Alcalá de Guadaíra?
deberás contactar con un electricista autorizado
o una empresa instaladora de tu zona. Solo ellos pueden realizar la revisión eléctrica de tu instalación. Una vez realizada la revisión, expedirán, sellarán tu boletín eléctrico y se lo entregarán en mano.
¿Qué precio tiene un certificado de instalación eléctrica?
el precio de un boletín en Alcalá de Guadaíra
no está regulado y depende de si es un certificado de instalación eléctrica para una vivienda o si es un certificado de instalación eléctrica para un local.
En el caso de viviendas particulares lo puedes encontrar desde 70 euros + IVA pero recuerda, que si no es realizado por un técnico electricista autorizado Alcalá de Guadaíra no nos sirve y puede que lo barato le salga caro.
¿Cuándo es obligatorio hacer un boletín eléctrico?
Este documento nos lo pedirán en los casos en los que se quiera dar de alta la luz por primera vez
y, de la misma forma, en los casos en los que se pretenda cambiar la potencia eléctrica, especialmente si se quiere aumentar.
Certificamos la instalación, CIE Alcalá de Guadaíra, Boletín Eléctrico Alcalá de Guadaíra
¿Quién puede certificar una instalación eléctrica?
Solo podrá emitir un certificado de instalación eléctrica en Alcalá de Guadaíra un
instalador electricista autorizado por el Ministerio de Industria porque deberá estar registrado y tener los permisos necesarios para validar que la instalación cumple con la normativa.
¿Cuándo es obligatorio cambiar o reformar la instalación eléctrica?
Se recomienda hacer una revisión de la instalación eléctrica cada 10 años, aproximadamente, sobre todo cuando se trata de una vivienda antigua. En el caso de que la instalación eléctrica supere los 30 años habrá renovarla para que cumpla con la legislación vigente.
¿Cómo saber si una vivienda tiene boletín eléctrico?
Si compraste una casa de segunda mano que ya tenía instalada la electricidad, lo mejor es ponerse en contacto con el vendedor para conocer el estado del boletín o certificado de instalación eléctrica de la vivienda.
¿Necesitas quitar un enganche ilegal en Alcalá de Guadaíra?
👇
Llámenos y sale de dudas.
Le asesoramos en todo el proceso y le daremos presupuesto sin compromiso.
¡Confíe solo en electricistas autorizados en regularizar el suministro eléctrico
en Alcalá de Guadaíra!
Profesionales y económicos
Nuestro equipo de instaladores electricistas de Alcalá de Guadaíra te resolverán todas las dudas sobre Certificación eléctrica.
Somos Electricistas Autorizados Alcalá de Guadaíra
por industria en Sevilla, con habilitación de instalador para realizar Boletines eléctricos Alcalá de Guadaíra
o Certificados de Instalación eléctrica para vivienda, casas, pisos, chalet, naves, industria, caravanas, locales, parking, comunidades de vecinos, ganaderías, fiestas, ferias, casetas y stand…Los Boletines de Electricidad Alcalá de Guadaíra
se realizan en 24/48h (siempre que cumpla la normativa vigente por industria) para cambios de titularidad, altas nuevas de electricidad, cambios para reducir y aumentar la potencia ya contratada.
¿Te pidieron un Boletín eléctrico para dar de alta el suministro eléctrico y no sabías de que hablaban?
El equipo de
Electricistas autorizados Alcalá de Guadaíra
resolverán todas tus dudas sobre Certificación energética.
A veces nos suena a chino cuando nos piden un documento y no sabemos de qué se trata.
Llámenos y verás que fácil y barato es obtener su Certificado de Instalación Eléctrica Alcalá de Guadaíra con nuestro equipo de Instaladores Autorizados en Alcalá de Guadaíra.
Nuestros Instaladores electricistas Alcalá de Guadaíra, autorizados por la Consejería de Innovación Ciencia y Trabajo, están capacitados para:
- Verificar la Instalación actual de su Vivienda Particular o Local Comercial.
- Modificar su Instalación Eléctrica
- Instalación Eléctrica
- Reparar Instalaciones Eléctricas
Y para expedir el
Certificado de Instalación Eléctrica CIE o Boletín Eléctrico Alcalá de Guadaíra
correspondiente para la legalización de ésta.
¿Quién lo emite?
Es muy importante estar seguro con quién contrata el Certificado de Instalación Eléctrica, ya que solo un Electricista Autorizado Alcalá de Guadaíra
puede emitir dicho documento.
¿Necesitas instalar un cargador de coche eléctrico o híbrido enchufable en Alcalá de Guadaíra?
👇







