¿Qué es el boletín eléctrico ó certificado de instalación eléctrica?
Contamos con todos los medios necesarios para la revisión de la instalación eléctrica, como diferentes comprobadores para la:
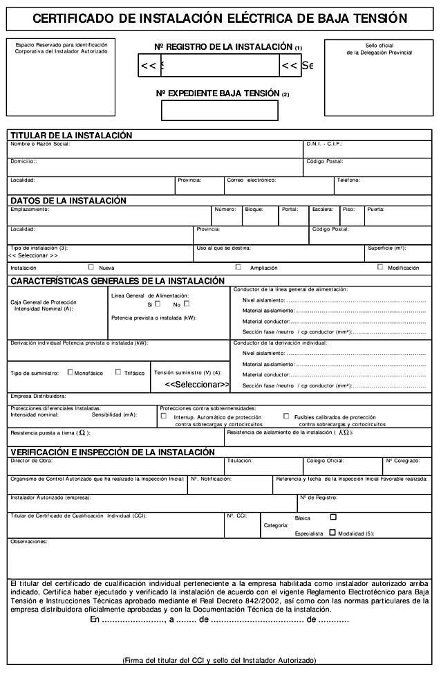
Certificamos la instalación eléctrica de su vivienda, local, empresa, etc..
¿Para qué gestiones le van a pedir un certificado de instalación eléctrica?
Los cuatro casos más frecuentes en los que le van a pedir un Boletín Eléctrico, son:
1/ Tienes que dar de alta la luz porque entras a vivir en una casa nueva y necesitas un boletín de enganche eléctrico Bellavista o certificado de instalación alta luz.
2/ Necesitas contratar más potencia de la que tienes contratada actualmente, superas el máximo que figura en tu Boletín Eléctrico y necesitarás un nuevo Certificado de Instalación Cambio de Potencia Bellavista que certifique que es posible realizarlo.
3/ Quieres pasar de monofásica a trifásica o viceversa tu instalación eléctrica, cambio de tensión.
4/ Necesitas hacer un cambio en tu contrato y tu boletín de electricidad Bellavista está caducado. Es muy importante antes de comprarte una vivienda de segunda mano, comprobar si el boletín está vigente.
¿Cómo saber si una vivienda tiene boletín eléctrico?
Si compraste una casa de segunda mano que ya tenía instalada la electricidad, lo mejor es ponerse en contacto con el vendedor para conocer el estado del boletín o certificado de instalación eléctrica de la vivienda.
¿Cuándo caduca un certificado de instalación eléctrica o boletín eléctrico?
El certificado de instalación eléctrica tiene una vigencia de 20 años. Pasado éste tiempo su boletín eléctrico habrá caducado, por lo deberás volver a contactar con un técnico electricista autorizado en Camas para que le emita un nuevo certificado.
¿Le pidieron Sacar fuera de la vivienda el cuadro de contador?
Realizamos
Montaje módulo de contador según la normativa en Sevilla.
Cambio de módulo para subir la potencia
Instalación cuadro eléctrico para monofásico y trifásico
Normalización cuadro de contador
Colocación cuadro eléctrico para alta luz en Sevilla
Revisamos e instalamos armarios de contador para empresas
Trabajamos cuadro de contador baja tensión
Legalizamos instalaciones de enlace
Somos electricistas autorizados y económicos en Camas
Adecuación del módulo de contador actual
Módulo para la instalación del contador
Punto de conexión a la red eléctrica
Instalación de puerta homologada para contador
Sacar fuera de la vivienda en cuadro de contador
Instalación CPM BUC actualización normativa Endesa
Enlace Endesa
Instalación CGP acometida
Llámenos y le asesoramos de todos los paso a seguir, precio y fechas. Todo muy rápido y profesional
Empresa instaladora electricistas autorizados en Camas
¿Necesitas quitar un enganche ilegal en Camas?
Llámenos y sale de dudas.
Le asesoramos en todo el proceso y le daremos presupuesto sin compromiso.
¡Confíe solo en electricistas autorizados en regularizar el suministro eléctrico
en Camas!
Profesionales y económicos
¿Necesitas instalar un cargador de coche eléctrico o híbrido enchufable en Camas?
👇
Ponte en contacto con nosotros a través de diferentes medios: e-mail, formulario de contacto, WhatsApp o teléfono.
Concretamos fecha y nos encargamos tanto de su instalación como de su puesta en marcha.
Empresa adherida al Plan Moves III. Le gestionamos la subvención para que ahorres hasta un 70 % en la instalación.
Asesoramiento técnico directamente con nuestros instaladores. Le ayudamos a elegir el cargador que mejor se adapte a sus necesidades.
¡Los mejores precios del mercado!
👇










