Certificamos la instalación eléctrica de su vivienda, local, empresa, etc..
¿Qué es el boletín eléctrico ó certificado de instalación eléctrica?
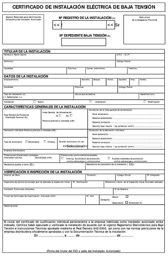
¿Cómo puedo conseguir un certificado de instalación eléctrica en Bormujos?
deberás contactar con un electricista autorizado o una empresa instaladora de tu zona. Solo ellos pueden realizar la revisión eléctrica de tu instalación. Una vez realizada la revisión, expedirán, sellarán tu boletín eléctrico y se lo entregarán en mano.
¿Qué precio tiene un certificado de instalación eléctrica?
el precio de un boletín en Bormujos no está regulado y depende de si es un certificado de instalación eléctrica para una vivienda o si es un certificado de instalación eléctrica para un local.
En el caso de viviendas particulares lo puedes encontrar desde 70 euros + IVA pero recuerda, que si no es realizado por un técnico electricista autorizado Bormujos no nos sirve y puede que lo barato le salga caro.
¿Cuándo es obligatorio el boletín eléctrico?
Los cuatro casos más frecuentes en los que le van a pedir un Boletín Eléctrico, son:
1/ Tienes que dar de alta la luz porque entras a vivir en una casa nueva y necesitas un boletín de enganche eléctrico Bellavista o certificado de instalación alta luz.
2/ Necesitas subir la potencia que tienes contratada actualmente, superas el máximo que figura en tu Boletín Eléctrico y necesitarás un nuevo Certificado de Instalación Cambio de Potencia Bellavista que certifique que es posible realizarlo.
3/ Quieres pasar de monofásica a trifásica o viceversa tu instalación eléctrica, cambio de tensión.
4/ Necesitas hacer un cambio en tu contrato y tu boletín de electricidad Bellavista está caducado. Es muy importante antes de comprarte una vivienda de segunda mano, comprobar si el boletín está vigente.
¿Qué documentación nos van a pedir para realizar el certificado de instalación eléctrica?
- Nombre
- DNI
- Dirección exacta
- Nº Cups
- Metros cuadrados
- Uso al que se va a destinar la instalación eléctrica (vivienda, local, carga de vehículos, etc..)
La validez de un Boletín eléctrico o Certificado de Instalación eléctrica es de 20 años. Pasado éste tiempo, su boletín de enganche ha caducado.
¿Cuándo es obligatorio cambiar o reformar la instalación eléctrica?
Se recomienda hacer una revisión de la instalación eléctrica cada 10 años, aproximadamente, sobre todo cuando se trata de una vivienda antigua. En el caso de que la instalación eléctrica supere los 30 años habrá renovarla para que cumpla con la legislación vigente.
¿Cómo saber si una vivienda tiene boletín eléctrico?
Si compraste una casa de segunda mano que ya tenía instalada la electricidad, lo mejor es ponerse en contacto con el vendedor para conocer el estado del boletín o certificado de instalación eléctrica de la vivienda.
PROTEGE TU CASA INSTALANDO UN PROTECTOR DE SOBRETENSIÓN
¿ Has tenido una avería por sobretensión ? ¿Una subida de tensión ha estropeado tu TV?
¿ tu instalación ha sufrido daños por sobretensión eléctrica?
¿ tienes daños eléctricos por caída de un rayo ?
¿una tormenta eléctrica provocó daños en tus electrodomésticos ?
¿ tienes un aire acondicionado roto por subida de tensión ?
El uso de estos protectores de sobretensión es indispensable para alargar la vida útil y evitar destrucción de nuestros electrodomésticos, ordenadores etc.
Instaladores electricistas autorizados para la instalación de protectores de sobretensión en Bormujos
¿Necesitas quitar un enganche ilegal en Bormujos?
Llámenos y sale de dudas.
Le asesoramos en todo el proceso y le daremos presupuesto sin compromiso.
¡Confíe solo en electricistas autorizados en regularizar el suministro eléctrico
en Bormujos!
Profesionales y económicos
¿Necesitas instalar un cargador de coche eléctrico o híbrido enchufable en Bormujos?
👇
Ponte en contacto con nosotros a través de diferentes medios: e-mail, formulario de contacto, WhatsApp o teléfono.
Concretamos fecha y nos encargamos tanto de su instalación como de su puesta en marcha.
Empresa adherida al Plan Moves III. Le gestionamos la subvención para que ahorres hasta un 70 % en la instalación.
Asesoramiento técnico directamente con nuestros instaladores. Le ayudamos a elegir el cargador que mejor se adapte a sus necesidades.
¡Los mejores precios del mercado!







